HOUSE C|D

This project was developed to include all the desires of the clients: an open plan kitchen, living and dining space, and a connection between the existing garden room, used as a home office.

 

Existing Ground Floor, First Floor & Site Plan.

The existing layout in this house was quite limited to two spaces, the kitchen and the living room.

The needs of the clients were an open and connected kitchen space, living and dining room, well lightened and bright.

 

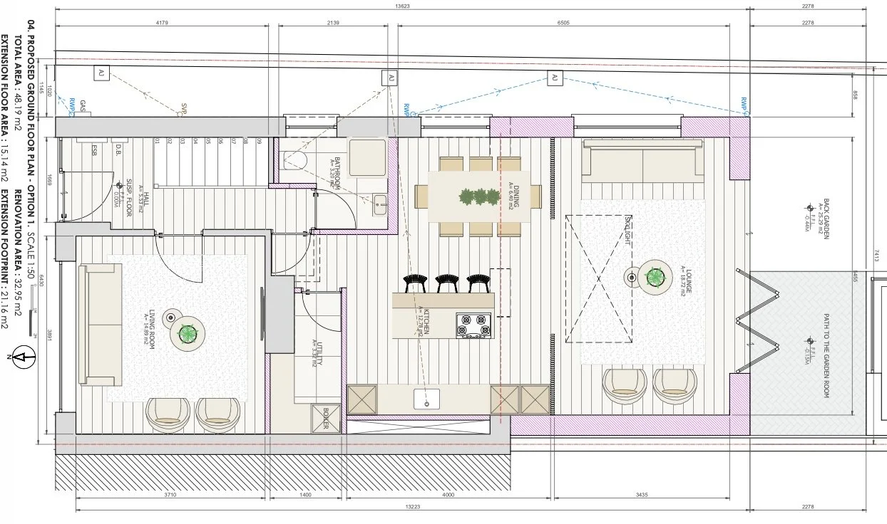
The idea on this layout was to create an extension to allow the possibility to have an open space with different usages. A dining space with a bench seat was a great solution to accommodate a big dining table and allow the circulation on that space not to be cluttered.

In the kitchen, a wide open skylight brings the sunlight in. It also includes a connection with a closed utility space, an internal courtyard to bring even more light and garden space to the inside of the house.

Finally, a snug lounge area to read a book while admiring the view of the back garden and be close to those using the kitchen or the breakfast table.

The second proposed layout offers even more open space, creating a big lounge area to connects the back of the house to the existing garden room, with a dining room directly connected to the big kitchen with an island, also used as a breakfast counter.

Photoshop image manipulation was used to present this project to the clients and give them a better concept of how the proposal would look like in real life.

Previous
Previous

House L|K

Next
Next

House Y|A